Mieszkanie na sprzedaż Kraków, Bieżanów-Prokocim, Prokocim, Jasińskiego

2 pokoje
33.03 m²
17 000,00 zł/m2
1 piętro
EMME-MS-59839
Oblicz ratę kredytu

561 510 zł

Mieszkanie na sprzedaż

Szczegóły oferty

Symbol oferty EMME-MS-59839
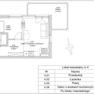
Powierzchnia 33,03 m²
Powierzchnia użytkowa [m2] 33,03 m²
Liczba pokoi 2
Rodzaj budynku niski budynek
Technologia budowlana mieszany
Piętro 1
Liczba pięter w budynku 3
Stan lokalu deweloperski
Rok budowy 2025
Winda tak
Pomieszczenia
Typ kuchni aneks kuchenny

Opis nieruchomości

Nowa inwestycja mieszkaniowa w Prokocimiu. 

Kameralny trzypiętrowy budynek z windą, zaledwie 13 mieszkań. Realizacja prac budowlanych w IV kw 2025, odbiór II kw 2026 roku. 

Mieszkanie z wyodrębnioną sypialnią i dużym narożnym balkonem. Ekspozycja wschód i północ. 

Ogrzewanie i ciepła woda centralne z kotłowni gazowej. Mieszkanie w stanie deweloperskim rozszerzonym o klimatyzację wraz z urządzeniami w standardzie,w całym mieszkaniu ogrzewanie podłogowe. Miejsce postojowe w garażu podziemnym w cenie od 45.000 do 55.000.

Świetnie skomunikowana okolica, 200 metrów do przystanku autobusowego przy Bieżanowskiej, 600 metrów do tramwaju przy Wielickiej, 700 metrów do stacji kolei aglomeracyjnej Kraków-Prokocim. Kompletna infrastruktura handlowa i usługowa w zasięgu spaceru, również liczne tereny zielone. Park Jerzmanowskich 400 metrów, Park Lilli Wenedy 600 metrów, kąpielisko Bagry 1100 metrów.

Zapraszam na prezentację.

Zapraszam do zapoznania się z naszą ofertą kredytową oraz wykończenia wnętrz.

Opiekun oferty: Michał Malina
______________

Powyższa oferta ma charakter informacyjny i nie stanowi oferty handlowej w rozumieniu art. 66 par. 1 Kodeksu Cywilnego oraz innych właściwych przepisów prawnych.

Wirtualny spacer

Lokalizacja nieruchomości

Kalkulatory

Kalkulator kredytowy

Wysokość raty

PLN
%

Kalkulator kosztów

Taksa notarialna
(opłata notarialna)

Wniosek o wpis do KW

VAT od prowizji
agencji nieruchomości

VAT od taksy notarialnej
(opłaty notarialnej)

Prowizja agencji nieruchomości

Wypisy aktu notarialnego

Razem

Uwaga: mogą wystąpić dodatkowe opłaty za założenie księgi wieczystej oraz ustanowienie hipoteki.

PLN
PLN
PLN
PLN
PLN
%
PLN

Podobne oferty

Wirtualny spacer

Mieszkanie na sprzedaż

Kraków, Bieżanów-Prokocim

2 pokoje 43 m2 15 900,00 zł/m2
Wirtualny spacer

Mieszkanie na sprzedaż

Kraków, Bieżanów-Prokocim

3 pokoje 55 m2 10 727,27 zł/m2
Bez prowizji

Mieszkanie na sprzedaż

Kraków, Bieżanów-Prokocim

4 pokoje 59 m2 12 000,00 zł/m2
Bez prowizji

Mieszkanie na sprzedaż

Kraków, Bieżanów-Prokocim

4 pokoje 59 m2 12 000,00 zł/m2

Agent

Proszę wprowadzić poprawne imię i nazwisko
Proszę wprowadzić poprawny numer telefonu
Proszę wprowadzić poprawny adres e-mail
Proszę zaznaczyć wymagane zgody
Rozwiąż równanie:
29 7
Niepoprawny wynik