710.00 m²
55,00 zł/m2
EMME-LW-58927

39 050 zł

Lokal na wynajem

Szczegóły oferty

Symbol oferty EMME-LW-58927
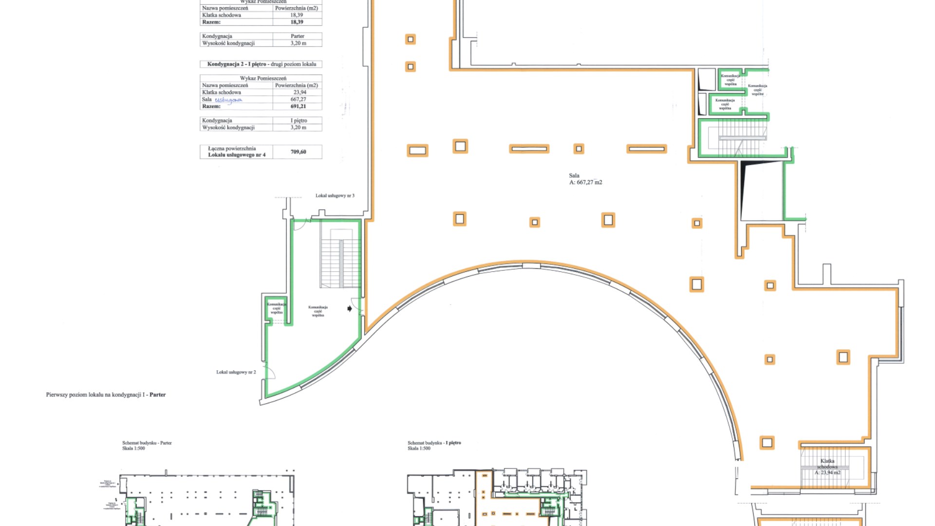
Powierzchnia 710,00 m²
Rodzaj budynku apartamentowiec
Liczba pięter w budynku 10
Stan lokalu do wykończenia
Stan budynku stan deweloperski
Rok budowy 2015
Winda tak

Opis nieruchomości

Do wynajęcia atrakcyjny lokal biurowy w reprezentacyjnym apartamentowcu na osiedlu mieszkaniowym Ruczaj.
Lokal usytuowany na 1 piętrze kompleksu apartamentowego z całodobową recepcją.
Posiada dwa niezależne wejścia. Jedno z klatki schodowej z windą, dzielonej z innymi lokalami biurowymi.
Druga klatka schodowa jest wyłącznie do dyspozycji przedmiotowego lokalu.

Lokal jest obecnie w stanie deweloperskim. Wszystkie media z sieci miejskiej, pełna wysokość 320 cm, wentylacja i kanalizacja rozprowadzona, przydział mocy 60 kW.
Powierzchnia użytkowa 667 m2, pozostałe 43 m2 to własna klatka schodowa.

Cena najmu to 55 zł netto/m2 powierzchni
Koszty eksploatacyjne na poziomie ok 13 000 zł netto/miesięcznie

Dostępnych jest 6 miejsc postojowych w garażu podziemnym.

Do wszystkich cen w ogłoszeniu należy doliczyć podatek Vat w stawce 23%.

Powyższa oferta ma charakter informacyjny i nie stanowi oferty handlowej w rozumieniu art. 66 par. 1 Kodeksu Cywilnego oraz innych właściwych przepisów prawnych.

Zachęcam do oglądania
Sabina Jeleniewicz
tel: 516 000 900
e-mail: sabina.jeleniewicz@ emmerson.pl

Lokalizacja nieruchomości

Podobne oferty

Lokal na wynajem

Kraków

445 m2 79,60 zł/m2
Oferta specjalna

Lokal na wynajem

Kraków

7 pokoi 483 m2 13,50 EUR/m2
Oferta specjalna
Wirtualny spacer

Lokal na wynajem

Kraków, Grzegórzki

460 m2 79,24 zł/m2
Wirtualny spacer

Agent

Proszę wprowadzić poprawne imię i nazwisko
Proszę wprowadzić poprawny numer telefonu
Proszę wprowadzić poprawny adres e-mail
Proszę zaznaczyć wymagane zgody
Rozwiąż równanie:
13 6
Niepoprawny wynik